Ref. 1835 198 m2 3 4 7
venta: 2.950.000 

Se vende espectacular vivienda de 198 m² situada en la zona de Castellana, en el prestigioso barrio de Salamanca, una de las ubicaciones más exclusivas de Madrid.


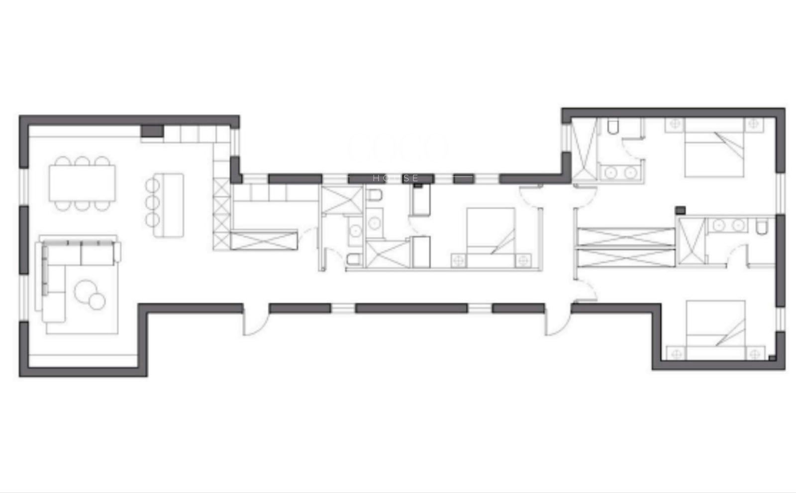
La vivienda se encuentra en una séptima y última planta, lo que le proporciona una luminosidad excepcional y una agradable sensación de amplitud y privacidad. Dispone de un gran espacio abierto que integra salón, comedor y cocina, diseñado para disfrutar de la luz natural y de una distribución moderna y funcional.


Cuenta con tres dormitorios en suite, todos ellos pensados para ofrecer el máximo confort y privacidad, además de un elegante baño de cortesía para invitados. La vivienda se completa con una zona de lavandería independiente, que aporta practicidad al día a día.


El edificio dispone de portero físico, añadiendo un plus de seguridad y comodidad. Una propiedad única por su altura, luz y ubicación, ideal para quienes buscan una vivienda amplia, sofisticada y en una de las mejores zonas residenciales de Madrid.

Índice de alquiler

Precio Venta 2.950.000 €
Precio/m² 14.899
Gastos de comunidad 208 €
I.B.I. 1.461 €
Año de construcción 1941
Construidos 198 m2
Dormitorios 3
Baños 4
Cocina Amueblada
Calefacción Individual
Altura/Planta 7
Estado Reformado
Ascensor
Aire acondicionado
Calificación Energética En trámite
Conserje
La dirección del inmueble es aproximada.

Inmuebles similares:

 
Piso en venta con 171 m2, 3 habitaciones y 4 baños, Ascensor, Amueblado, Aire acondicionado y Calefacción Individual.
 171 m2  3  4
2.800.000 €
 
Piso en venta en Madrid, con 200 m2, 3 habitaciones y 3 baños, Garaje, Trastero, Ascensor, Amueblado, Aire acondicionado y Calefacción Central.
 200 m2  3  3
3.200.000 €
Solicita información

Si deseas más información sobre esta propiedad, por favor, rellena el formulario: