Ref. 1807 152 m2 3 3 5
venta: 1.790.000 

Exclusiva vivienda reformada en la prestigiosa zona de Almagro, Chamberí


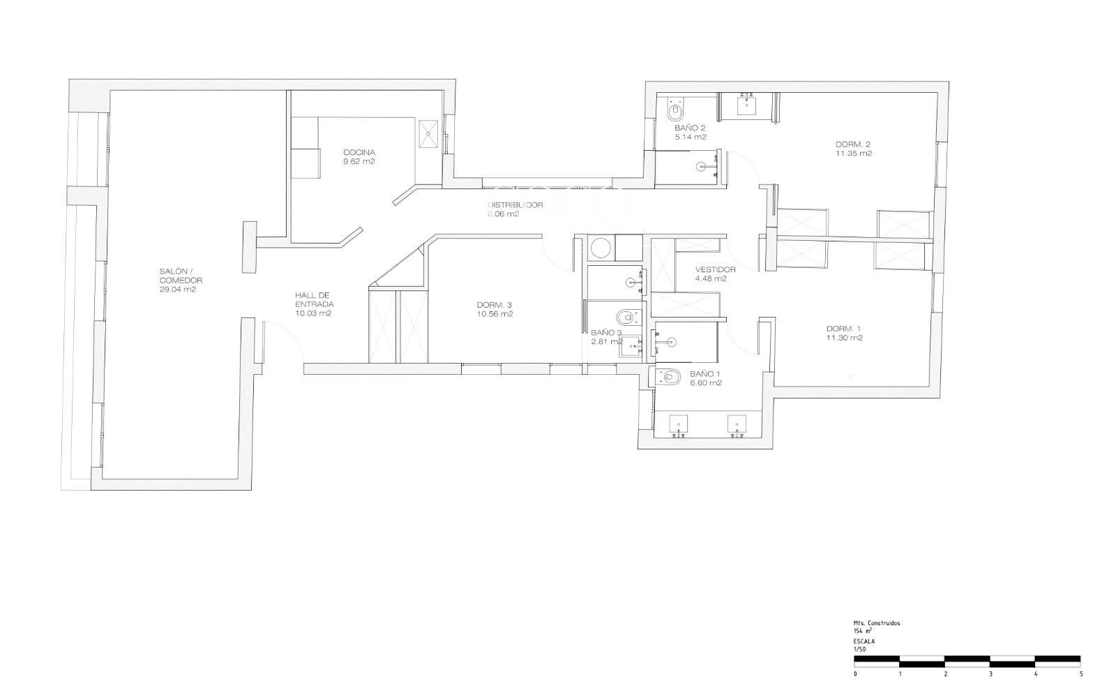
Ubicada en una quinta planta de un edificio de fachada emblemática con ascensor y portero físico, esta propiedad de 152 m² combina el encanto de la arquitectura clásica con una reforma integral de diseño contemporáneo y calidades de primera. El proyecto ha respetado la esencia original del inmueble, incorporando elementos como techos altos con molduras y vidrieras originales, que aportan carácter y sofisticación, al tiempo que introduce una distribución funcional y elegante.


La vivienda se compone de un amplio salón-comedor con tres grandes ventanales a la calle, dos de ellos balcones, que ofrecen agradables vistas despejadas y una excelente luminosidad natural. Una amplia cristalera interior en el pasillo refuerza la entrada de luz, creando un ambiente acogedor y sereno.


La cocina es independiente y está equipada con electrodomésticos de alta gama. Dispone de tres habitaciones en suite, todas ellas espaciosas, con armarios empotrados y baño privado, lo que garantiza máximo confort y privacidad. La vivienda se entrega completamente amueblada con mobiliario de calidad, lista para entrar a vivir.


Incluye además un amplio trastero y cuenta con calefacción central. Su ubicación es inmejorable, en el corazón de uno de los barrios más codiciados de Madrid, rodeado de comercios, servicios y excelentes conexiones de transporte.

Índice de alquiler

Año de construcción 1945
Construidos 152 m2
Útiles 132 m2
Precio/m² 11.776
Dormitorios 3
Baños 3
Amueblado
Cocina Amueblada
Calefacción Central
Trastero
Altura/Planta 5
Orientación Este
Estado Reformado
Tipo de suelo Madera
Ascensor
Aire acondicionado
Calificación Energética En trámite
Conserje
La dirección del inmueble es aproximada.

Inmuebles similares:

 
Piso en venta en Madrid, con 141 m2, 2 habitaciones y 2 baños, Ascensor, Amueblado, Aire acondicionado y Calefacción Central.
 141 m2  2  2
2.000.000 €
 
Piso en venta en Madrid, con 147 m2, 3 habitaciones y 3 baños, Amueblado y Aire acondicionado.
 147 m2  3  3
1.650.000 €
Solicita información

Si deseas más información sobre esta propiedad, por favor, rellena el formulario: