La Enérgica | Recoletos

Piso en venta en Madrid (Salamanca)

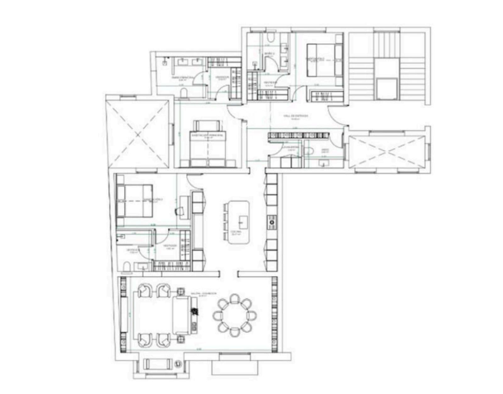
Ref. 1821 210 m2 3 4 2
venta: 4.160.000 

Presentamos una valiosa oportunidad de adquirir un inmueble palaciego en la cotizada zona de Recoletos, uno de las zonas más emblemáticas de Salamanca, Madrid. Este espacio, con una superficie construida de 210 m2, se encuentra en un estado que permite al comprador personalizarlo y adaptarlo a sus necesidades y gustos. La flexibilidad que ofrece este inmueble se convierte en una ventaja para aquellos que buscan una propuesta única y exclusiva en un entorno urbano privilegiado.

El edificio cuenta con ascensor y conserje, lo que garantiza un nivel de confort y seguridad en la vida diaria. La calidad de los acabados y la estructura del inmueble posibilitan una experiencia residencial de alta gama. La proximidad a servicios de primer nivel, así como a comercios y lugares emblemáticos de la ciudad, agrega valor a esta opción.

Oportunidad que no se puede desaprovechar. Su distribución versátil y su ubicación estratégica son elementos que apelan a una amplia gama de perfiles de compradores. Con posibilidad de personalización completa, se invita a visitar esta propiedad para descubrir el potencial que tiene para convertirse en un hogar o una inversión de primer nivel.

Índice de alquiler

Año de construcción 1900
Construidos 210 m2
Precio/m² 19.810
Dormitorios 3
Baños 4
Amueblado
Cocina Amueblada
Trastero
Altura/Planta 2
Orientación Sur
Estado A Reformar
Ascensor
Calificación Energética En trámite
La dirección del inmueble es aproximada.

Inmuebles similares:

 
Piso en venta en Madrid, con 243 m2, 4 habitaciones y 5 baños, Ascensor, Amueblado, Aire acondicionado y Calefacción Individual.
 243 m2  4  5
3.800.000 €
 
Ático en venta en Madrid, con 240 m2, 3 habitaciones y 4 baños, 2 plazas de Garaje, Trastero, Ascensor, Amueblado, Aire acondicionado y Calefacción Individual.
 240 m2  3  4
4.750.000 €
Solicita información

Si deseas más información sobre esta propiedad, por favor, rellena el formulario: